Để lắp thang máng cáp đúng tiêu chuẩn TCVN 9208:2012, bắt đầu bằng việc kiểm tra bản vẽ thi công và chuẩn bị vật tư. Sử dụng giá treo cách nhau 1,5-2m, cố định bằng bu-lông nở M8-M12, nối đẳng thế tại mọi mối nối, và nghiệm thu sau khi kéo cáp hoàn tất.
Công tác chuẩn bị cho giai đoạn trước khi lắp đặt
Công tác chuẩn bị bao gồm 5 bước cốt lõi: kiểm tra mặt bằng xây dựng, chuẩn bị biện pháp an toàn (giàn giáo, PPE), xác nhận bản vẽ thi công mới nhất, tập kết đầy đủ vật tư (máng cáp, phụ kiện) và kiểm tra dụng cụ thi công (máy khoan, máy cắt, laser).
1. Kiểm tra công tác xây dựng liên quan
Đảm bảo tường, sàn, trần đã hoàn thiện, không có vật cản trên tuyến lắp đặt. Phải phối hợp mặt bằng với các nhà thầu cơ điện khác để tránh xung đột với hệ thống MEP (như HVAC, PCCC). Đo đạc cao độ từ trục tham chiếu, xác định vị trí lỗ xuyên kết cấu.
2. Biện pháp an toàn
Lắp giàn giáo cao 1,8m với lan can 1m, dây chằng chắc chắn. Sử dụng dây đai toàn thân khi làm việc trên cao >2m. Chuẩn bị bình chữa cháy CO2 5kg, quạt thông gió công suất 500m³/h, kính bảo hộ chống bụi, mặt nạ hàn lọc khí, giày cách điện, nón bảo hộ tiêu chuẩn VNQ 314:2019. Đặt biển báo “Khu vực thi công – Nguy hiểm” cách 5m. An toàn điện là tối quan trọng, tương tự như việc lắp đặt aptomat chống giật cho hệ thống.
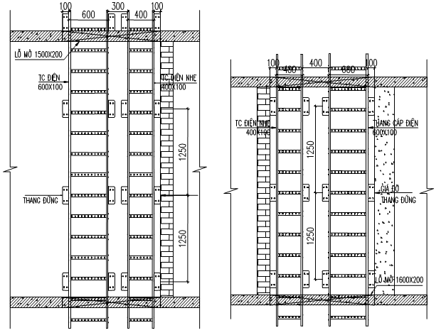
3. Bản vẽ thi công
Sử dụng phiên bản mới nhất đã phê duyệt, thể hiện định vị tuyến, cao độ 2-3m từ sàn, khoảng cách giữa lớp máng 300mm, loại máng (thang/khay), phụ kiện như co lên/xuống bán kính R=300-600mm tùy kích thước.
4. Vật tư
Chuẩn bị thang máng cáp thép mạ kẽm nhúng nóng dày 1,5-2mm, kích thước 200x100mm đến 600x200mm, phụ kiện nối bulong M8, đầu cos cho dây tiếp địa, que hàn E6013 đường kính 3,2mm, sơn chống gỉ 2 lớp, vít tự khoan M5. Kiểm tra không cong vênh, rỉ sét.
5. Dụng cụ
Thủy bình laser chính xác 0,5mm/m, máy hàn MIG 200A, máy cắt plasma tốc độ 500mm/phút, máy khoan bê tông 13mm, dụng cụ đo điện trở nối đất <0,1Ω.

Sơ lược về hệ thống thang, máng, ống cáp điện
Có 3 loại chính: Thang cáp (dạng thang, cho cáp lớn, tải 100-200kg/m), Khay cáp (đột lỗ 50%, cho cáp nhỏ, tải 50-100kg/m, thoát nhiệt tốt), và Máng cáp (hộp kín, cho cáp tín hiệu, chống bụi, tải 80-150kg/m).
1. Hệ thống thang cáp điện
Dạng thang ngang, dùng cho cáp động lực lớn (tham khảo phân biệt cáp CVV và CXV) đường kính >20mm, tải trọng 100-200kg/m, lắp đặt thẳng đứng hoặc ngang, khoảng cách then ngang 250mm để buộc cáp.
2. Hệ thống khay cáp điện
Dạng khay đột lỗ 50%, dùng cho cáp nhỏ <10mm, tải trọng 50-100kg/m, thoát nhiệt tốt, lắp đặt trong nhà máy với khoảng cách đỡ 1m.
Chuyên viên tư vấn & Báo giá
Ms. Khuyên Bùi

3. Hệ thống máng cáp
Dạng hộp kín, dùng cho cáp tín hiệu nhạy cảm, tải trọng 80-150kg/m, chống bụi bẩn, lắp đặt ngoài trời với nắp đậy bulong. Với các tuyến trục chính tải cực lớn, Busway là một giải pháp thay thế hiệu quả.

Tổng quan về quá trình lắp đặt
Quá trình lắp đặt gồm 10 bước: Định vị tuyến -> Khoan/hàn giá treo (bulong nở, cách 1.5-2m) -> Tạo lỗ xuyên kết cấu -> Lắp máng (nối bulong M8 siết 20Nm, mài bavia) -> Nối đẳng thế (dây 16mm², <0,1Ω) -> Lắp chắn xuyên -> Kiểm tra hoàn thiện (sai lệch <5mm) -> Đánh dấu bản vẽ -> Vệ sinh -> Lắp nắp sau khi kéo cáp.
- Định vị tuyến: Vạch dấu trên sàn/trần từ trục X-Y, đo cao độ bằng thủy bình, đánh dấu vị trí co, rẽ nhánh, lỗ xuyên tường dày 200mm với bọc ống PVC.
- Khoan/hàn giá treo: Khoan lỗ Ø10mm sâu 80mm, lắp bu-lông nở hóa chất Fischer, gắn giá treo thép U100, đảm bảo thẳng hàng bằng dây rọi.
- Tạo lỗ xuyên: Khoan lỗ Ø150-300mm, mài cạnh, sơn chống cháy 2 lớp, lắp tấm chắn kim loại dày 1mm.
- Lắp máng: Bắt đầu từ đầu cuối, lắp co trước, nối đoạn thẳng bằng bulong M8 siết lực 20Nm, mài bavia vết cắt, sơn dặm 2 lớp.
- Nối đẳng thế: Sử dụng dây đồng 16mm², kết nối tại mối nối bằng kẹp C-clamp, đo điện trở <0,1Ω.
- Lắp chắn xuyên kết cấu: Chèn khe bằng vữa không co ngót, lắp tấm chắn inox dày 1mm.
- Kiểm tra hoàn thiện: Đo cao độ sai lệch <5mm, thẳng hàng bằng laser, siết bulong lại, tẩy gờ sắc.
- Đánh dấu bản vẽ: Ghi chú hoàn thành, yêu cầu nghiệm thu bằng biểu mẫu A3.
- Vệ sinh: Thu gom phế liệu, lau sạch bụi bằng giẻ cotton.
- Sau khi thi công cáp: Kiểm tra lệch <10mm, sửa chữa, lắp nắp máng bằng vít M5 cách 500mm.
Công tác lắp đặt thang máng cáp điện
Các phương pháp lắp đặt chính bao gồm: Lắp bằng thanh treo (dùng ty ren M10 cách 1.5m, chịu tải 150kg/m) và Lắp theo phương thẳng đứng (dùng giá đỡ tường U150 cách 2m, cố định cáp bằng dây buộc). Khi kết nối vào tủ điện, phải dùng co giảm và bọc ống PVC Ø50mm.
1.1 Lắp đặt bằng thanh treo
Sử dụng thanh ty ren M10 dài 1-2m, treo từ trần bê tông, khoảng cách treo 1,5m, chịu tải 150kg/m, điều chỉnh độ cao bằng đai ốc.
1.2 Lắp đặt theo phương thẳng đứng
Sử dụng giá đỡ tường U150, khoảng cách 2m, cố định cáp bằng dây buộc nylon cách 1m, bán kính uốn 135° tại chuyển hướng.

Kết nối thang máng cáp đến tủ điện và các công tác hoàn thiện
Sử dụng co giảm kích thước, nối bằng bulong, bọc ống luồn cáp PVC Ø50mm tại điểm tiếp giáp, đảm bảo không sắc cạnh chạm cáp.

- Nối đẳng thế: Dây đồng 25mm², kẹp tại tủ và máng.
- Lắp chắn xuyên: Chèn bọt polyurethane chống cháy.
- Kiểm tra hoàn thiện: Đo độ thẳng bằng dây căng, sửa trầy xước bằng sơn zinc.
- Kiểm tra hư hỏng: Thay thế nếu võng >10mm.
- Cân chỉnh: Sử dụng mức nước laser.
- Đánh dấu bản vẽ: Ghi hoàn thành, gửi yêu cầu nghiệm thu. Đây là một phần của dịch vụ thử nghiệm điện chuyên nghiệp.
- Vệ sinh: Hút bụi bằng máy 2000W.
- Sau kéo cáp: Siết lại bulong, lắp nắp.
Công tác nghiệm thu
Quy trình nghiệm thu gồm: 1) Nghiệm thu nội bộ (kiểm tra 100% mối nối, thử tải 1.5 lần); 2) Gửi giấy mời CĐT/TVGS trước 24h; 3) Nghiệm thu chính thức (ký biên bản, đo điện trở nối đất <0,05Ω); 4) Chuyển sang giai đoạn kéo cáp.
- Nghiệm thu nội bộ: Kiểm tra 100% mối nối, đo tải trọng thử nghiệm 1,5 lần. Đây là bước kiểm tra cơ khí quan trọng trong gói dịch vụ cơ điện.
- Gửi giấy mời: Thông báo CĐT/TVGS trước 24h.
- Nghiệm thu chính thức: Ký biên bản đạt, đo điện trở nối đất <0,05Ω.
- Chuyển giai đoạn: Bắt đầu kéo cáp sau khi đạt.
| Phương pháp | Ưu điểm | Nhược điểm | Thời gian thực hiện |
|---|---|---|---|
| Thanh treo | Tiết kiệm không gian, dễ điều chỉnh | Cần trần chắc chắn | 2-4 giờ/100m |
| Phương đứng | Tiết kiệm diện tích sàn | Khó buộc cáp | 3-5 giờ/50m |
| Kết nối tủ | An toàn tiếp địa | Cần phụ kiện chuyên dụng | 1-2 giờ/điểm |
Lưu ý quan trọng: Tránh lắp gần nguồn nhiệt >60°C, sử dụng dây buộc nylon không kim loại, kiểm tra định kỳ 6 tháng/lần (thường kết hợp scan nhiệt các mối nối cáp).
Sai lầm thường gặp: Không nối đẳng thế dẫn đến nguy cơ giật điện – khắc phục bằng đo kiểm tra trước vận hành (do RCCB/Aptomat chống giật không thể hoạt động chính xác).
Câu hỏi thường gặp: Khoảng cách giá đỡ tối đa? (2m theo TCVN); Làm sao tránh võng? (Tăng giá đỡ nếu tải >100kg/m).

Ông Đỗ Tấn Tuấn là người trực tiếp phụ trách toàn bộ nội dung trên website kth-electric.com. Các bài viết được xây dựng từ nguồn kiến thức chuyên sâu, kết hợp giữa tài liệu tham khảo uy tín (có trích dẫn cụ thể) và kinh nghiệm thực tiễn dày dặn của ông. Vì vậy, bạn đọc có thể hoàn toàn tin tưởng vào tính chính xác và độ tin cậy của thông tin, đảm bảo mỗi nội dung chia sẻ đều mang lại giá trị tham khảo hữu ích và đáng tin cậy.

