Thi Công Điện MEP Biệt Thự Ngân Collagen
Case Study: Giải pháp cơ điện toàn diện “May Đo” cho Luxury Villa kết hợp Home Spa đẳng cấp.
1. Khi Biệt Thự Không Chỉ Là Nơi Để Ở
Yêu cầu cốt lõi: “Dự án là tổ hợp sống kết hợp làm việc (Luxury Villa + Home Spa). Hệ thống cơ điện MEP phải hoạt động ổn định 24/7, chịu tải cao và đảm bảo tính thẩm mỹ ‘vô hình’ tuyệt đối cho kiến trúc nội thất.”
Dự án Biệt thự Ngân Collagen là một bài toán thú vị nhưng đầy thách thức. Không đơn thuần là công trình dân dụng, đây là một Studio làm đẹp chuyên nghiệp đặt trong lòng một không gian sống thượng lưu.
Chính vì vậy, yêu cầu đặt ra không chỉ là “đủ điện, đủ nước”, mà hệ thống phải hoạt động bền bỉ với độ tin cậy cao nhất (High Availability), đồng thời phải “ẩn mình” hoàn hảo để tôn vinh vẻ đẹp nội thất.
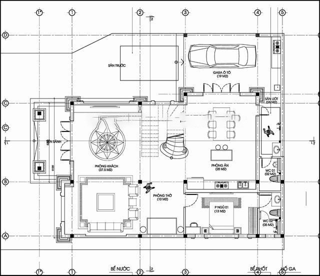
🏗️ Loại Hình & Quy Mô
- Loại hình: Biệt thự đơn lập (Luxury Villa)
- Diện tích sàn: 450m2 (1 Trệt, 2 Lầu, 1 Tum)
⚡ Hạng Mục Triển Khai
- Điện động lực (Power Supply)
- Điện nhẹ (ELV: Camera, IoT Smarthome)
- HVAC (VRV System)
- Cấp thoát nước (P&S)
🛡️ Tiêu Chuẩn Áp Dụng
- TCVN 7447:2010 (Việt Nam)
- IEC 60364 (Quốc tế)

2. Thách Thức & Chiến Lược Giải Pháp Kỹ Thuật
Để giải quyết các “pain points” của khách hàng ngành làm đẹp, chúng tôi áp dụng chiến lược “May Đo Kỹ Thuật” chi tiết:
A
Hệ Thống Chiếu Sáng & Smarthome: Trải Nghiệm Thị Giác
Thách thức: Livestream và Makeup cần ánh sáng trung thực tuyệt đối. Trần nhà nhiều đường cong decor khó đi dây.
Triển khai thực tế:
- Đèn LED: Magnetic Track light & Downlight Deep Anti-glare (Chống chói sâu).
- Human Centric Lighting: Tự động đổi màu từ 6000K (ngày) sang 3000K (đêm) theo nhịp sinh học.
- Ngữ cảnh: Kịch bản “Tiếp khách”, “Relax”, “Livestream” chỉ với 1 nút bấm.

B
Điều Hòa HVAC “Vô Hình”
Sử dụng hệ thống VRV âm trần nối ống gió. Cửa gió Slot Linear sơn tĩnh điện cùng màu trần, đảm bảo mát lạnh nhưng không thấy thiết bị, giữ nguyên vẻ đẹp trần thạch cao.
C
Cấp Thoát Nước An Toàn
Công nghệ ống PPR hàn nhiệt đối đầu cho hệ thống Heat Pump (Nước nóng trung tâm). Mối nối đồng nhất tuyệt đối, loại bỏ rủi ro rò rỉ âm tường, tuổi thọ hệ thống > 50 năm.

3. Quy Trình 4 Bước Kiểm Soát Chất Lượng (QA/QC)
Rough-in & Đi Ống
Định vị Laser, cắt tường bằng máy chuyên dụng. Sử dụng ống luồn dây chống cháy SP/Vanlock, đi vuông góc.
Wiring & Megger Test
Kéo dây Cadivi/Thipha. Bắt buộc đo điện trở cách điện ngay lập tức để phát hiện rò rỉ trước khi đóng trần.
Lắp Đặt & Đấu Nối
Đấu nối tủ điện chuẩn “Ép cos – Bọc mũ”. Cân bằng pha tránh sụt áp. Lắp thiết bị Smarthome.
Testing & Commissioning
Test áp lực nước 8-10 bar. Test tải điện full load kết hợp Camera nhiệt quét điểm nóng.

Hình ảnh tủ điện hoàn thiện: Gọn gàng, An toàn, Đúng kỹ thuật
4. Bảng Kê Vật Tư & Thiết Bị Chính (Bill of Materials)
| Hạng mục | Thương hiệu / Thông số | Ghi chú kỹ thuật |
|---|---|---|
| Dây cáp điện | Cadivi / Daphaco | Đồng 99.9% (Xem cách chọn) |
| Thiết bị đóng cắt | Schneider Electric / Panasonic | MCB, RCBO chống dòng rò |
| Ống luồn dây | Vega / SP | Chống cháy, chịu lực nén cao |
| Công tắc/Ổ cắm | Legrand Galion / Panasonic Gen-X | Kính cường lực/Kim loại |
| Điều hòa HVAC | Daikin VRV A / Panasonic FSV | Inverter, tiết kiệm năng lượng |
| Ống nước | Tiền Phong / Vesbo (PPR) | Chịu nhiệt độ cao, an toàn |
5. Kết Quả Nghiệm Thu Thực Tế
Kỹ thuật âm tường hoàn toàn. Cửa gió “vô hình”.
Hệ tuần hoàn Heat Pump cung cấp nước nóng tức thì.
PHỤ LỤC: Tài Liệu Vận Hành & Bảo Trì (O&M)
🛠️ Lịch Trình Bảo Dưỡng
- 📅 Hàng Tháng:Vệ sinh lưới lọc gió (Studio). Kiểm tra ổ cắm lỏng, rò rỉ nước.
- 📅 Hàng Quý:Test nút Aptomat chống giật (RCBO). Vệ sinh dàn nóng/lạnh, thông nước ngưng.
- 📅 Hàng Năm:Siết chặt ốc vít tủ MSB (chống move nhiệt). Bảo trì tổng thể.
✅ Cam Kết Bảo Hành
1. Kỹ thuật lắp đặt: 24 tháng.
2. Thiết bị chính hãng: Theo hãng (Daikin, Panasonic…).
3. Hỗ trợ khẩn cấp: Có mặt trong 2 giờ.
Dịch vụ liên quan:
6. Câu Hỏi Thường Gặp
Tại sao nên dùng điều hòa VRV cho biệt thự?
Hệ thống HVAC VRV tiết kiệm không gian đặt dàn nóng, dàn lạnh giấu trần thẩm mỹ cao, phù hợp không gian sang trọng.
Chi phí bảo trì có cao không?
Rất thấp so với chi phí sửa chữa sự cố. Bảo trì định kỳ giúp hệ thống bền bỉ 15-20 năm. Xem báo giá bảo trì.
Tiêu chuẩn an toàn quan trọng nhất?
Hệ thống tiếp địa (< 4 Ohm) và chống dòng rò (RCBO) để bảo vệ con người. Tuân thủ TCVN 7447 là bắt buộc.
Smarthome có khó sử dụng không?
Không. Với kịch bản ngữ cảnh (Về nhà, Đi ngủ…), người già và trẻ em đều dùng dễ dàng qua 1 nút bấm hoặc giọng nói.
Bạn Cần Tư Vấn Giải Pháp MEP Cho Biệt Thự?
Liên hệ ngay với đội ngũ kỹ sư của chúng tôi để nhận tư vấn “may đo” và bảng dự toán chi tiết miễn phí.

Ông Đỗ Tấn Tuấn là người trực tiếp phụ trách toàn bộ nội dung trên website kth-electric.com. Các bài viết được xây dựng từ nguồn kiến thức chuyên sâu, kết hợp giữa tài liệu tham khảo uy tín (có trích dẫn cụ thể) và kinh nghiệm thực tiễn dày dặn của ông. Vì vậy, bạn đọc có thể hoàn toàn tin tưởng vào tính chính xác và độ tin cậy của thông tin, đảm bảo mỗi nội dung chia sẻ đều mang lại giá trị tham khảo hữu ích và đáng tin cậy.

